Notice
2025.11.12
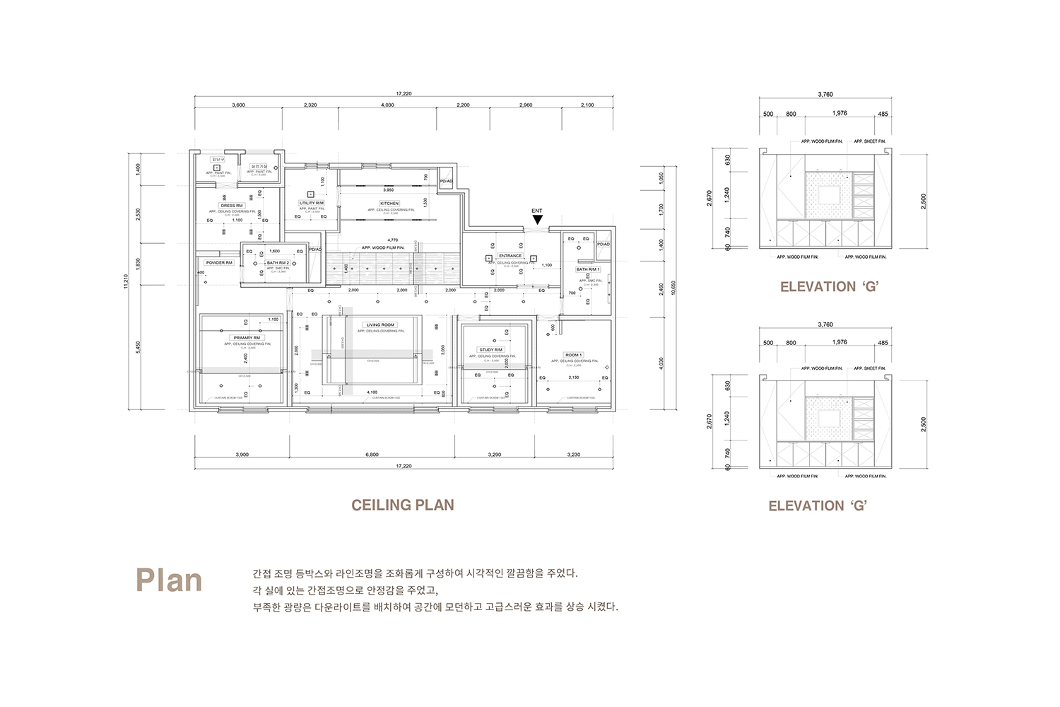
| 쎈 인테리어 포트폴리오 © 2025 INTERIOR PORTFOLIO INSTRUCTOR: GGUMSARA / YONGSSENN 쎈 인테리어 포트폴리오는 A-BLE.NET의 GGUMSARA - CAD1 FOUNDATION & CAD2 ADVANCED - 강의를 기반으로 도면파트를, 페이서의 Yongsenn - 용센의 실내건축 ALL IN ONE - 강의를 기반으로 시각화 파트를 만듭니다. ![]() ![]() ![]() ![]() ![]() ![]() ![]() ![]() ![]() ![]() ![]() ![]() ![]() |
PREV
쎈 인테리어 포트폴리오
NEXT
쎈 인테리어 포트폴리오












